廠房、倉庫不能和民用建筑合建,確因功能所需,可以設置自用的辦公室和休息室,其建筑防火、安全疏散及消防設施要求,規范不甚明確,應結合廠房和公共建筑的相關要求確定!(本文僅供參考)
第一章 建筑防火
附屬在廠房倉庫的辦公室(休息室),其安全疏散要求,應結合廠房和辦公休息區域的防火分隔形式等要求確定!
一、與甲乙類廠房貼鄰的辦公室和休息室:
辦公室、休息室等不應設置在甲、乙類廠房內,確需貼鄰本廠房時,其耐火等級不應低于二級,并應采用耐火極限不低于3.00h的防爆墻與廠房分隔(不能有洞口),且應設置獨立的安全出口。
這種情況下,辦公室(休息室)部分是完全獨立的,其安全疏散要求(包括疏散樓梯形式、疏散凈寬度、安全疏散距離等)可參考《建規》第5 章有關公共建筑的要求確定(圖示1):
(圖示1)
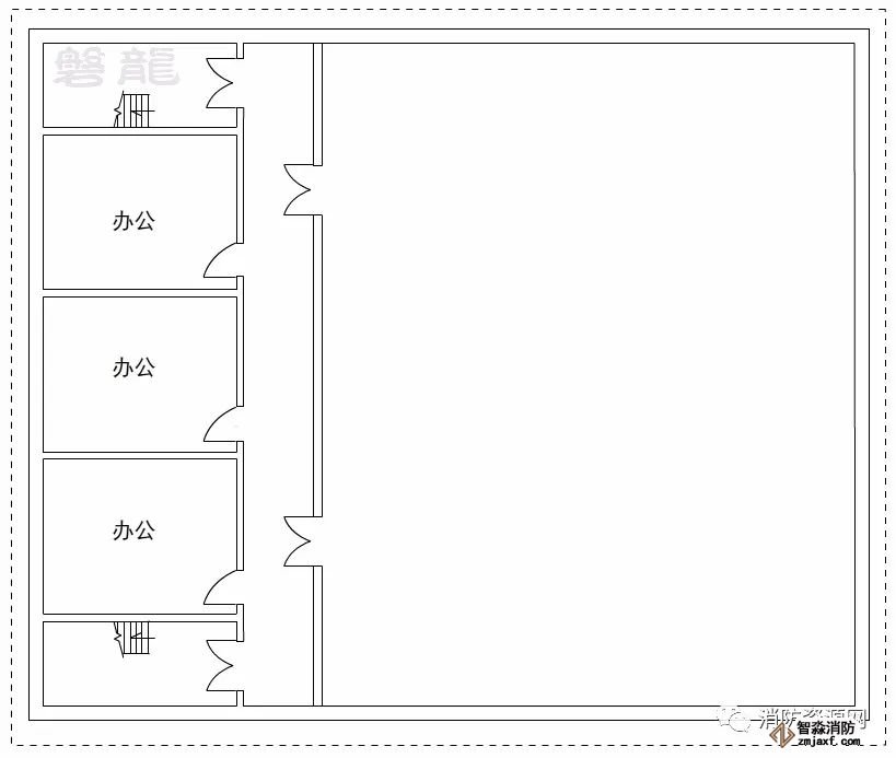
二、設置在丙類廠房的辦公室和休息室:
辦公室、休息室可以設置在丙類廠房內,應采用耐火極限不低于2.50h的防火隔墻和1.00h的樓板與其他部位分隔,并應至少設置1個獨立的安全出口。
有關安全疏散要求,以圖示2為例,說明如下:
1、防火隔墻上可以開設工作所需的連通門(乙級防火門),連通門不作為疏散門使用(不限開啟方向)。
2、辦公室、休息室應設置不經過生產區域的疏散門、安全出口(疏散樓梯)等直通廠房外,參見圖示2。
(圖示2)
注:圖示2中,對于辦公室(休息室)部分,當滿足《建規》5.5.8設置1部疏散樓梯的條件時,可只設置一部疏散樓梯(或一個安全出口)。
3、疏散門、安全出口、疏散走道的凈寬度,以及疏散樓梯的形式等等,應同時參照廠房和公共建筑,以較高要求確定。
注:有觀點認為,辦公部分的疏散是獨立的,且采取了防火分隔措施,因此疏散凈寬度可參照公共建筑的要求確定。
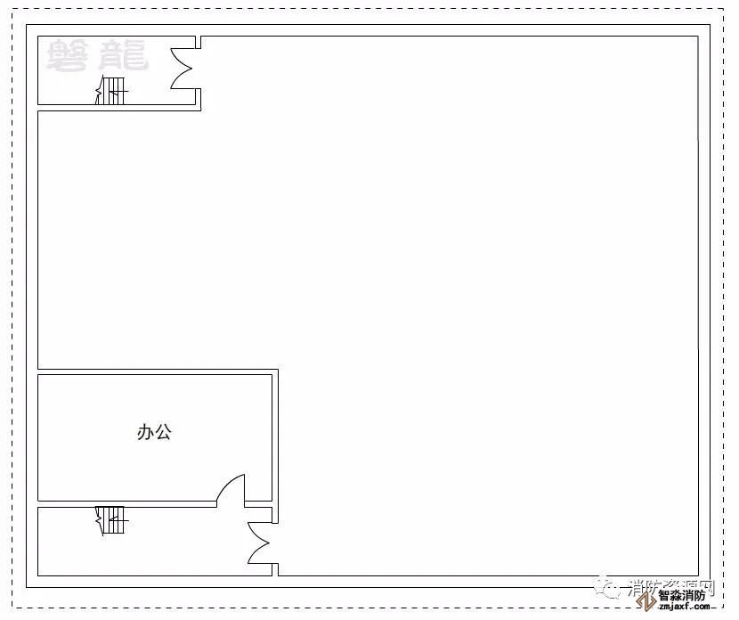
4、參考觀點:對于需要兩個安全出口的情況,根據《建規》3.3.5條款要求,辦公休息區域只需設置1個獨立的安全出口即可,另一個安全出口可以和廠房共用,不通過廠房區域直接進入疏散樓梯間即可。(參見圖示3)
二、設置在丁、戊類廠房的辦公室和休息室:
1、辦公室和廠房可以通過共用的安全出口疏散,共用部分的疏散門、安全出口、疏散走道的凈寬度,以及疏散樓梯的形式等等,應同時參照廠房和公共建筑,以較高要求確定。
2、走道隔墻上的門可以采用普通門,應向疏散方向開啟,
3、廠房內任意一點至安全出口的安全疏散距離,可依廠房的要求確定(3.7.4),距離的計算應為直線行走距離,要考慮走道隔墻及的遮擋。
注:疏散距離均為行走直線距離,通常不考慮設備、家具及辦公桌椅等障礙物的影響,但需要考慮墻體遮擋的影響,相關要求及概念,可參專題:建筑防火-安全疏散距離控制原則及要求!
4、辦公室(休息室)任意一點的安全疏散距離,可參照公共建筑(辦公建筑)的相關要求確定。

(圖示4)
5、對于設置在廠區的個別辦公室,宜靠近安全出口,也不宜通過生產區疏散(參見圖示5)。
(圖示5)
四、設置在倉庫場所的辦公室和休息室:
1、辦公室、休息室等嚴禁設置在甲、乙類倉庫內,也不應貼鄰。
2、辦公室、休息室設置在丙、丁類倉庫內時,應采用耐火極限不低于2.50h的防火隔墻和1.00h的樓板與其他部位分隔,并設置獨立的安全出口。有關安全疏散的相關要求,可參照上述第二條有關廠房的要求執行。
3、辦公室、休息室設置在戊類倉庫時,規范沒有提出防火分隔要求,但仍應合理布局,辦公室(休息室)的安全疏散應相對獨立,不宜直接通過倉庫疏散,具體要求,可參照上述第三條有關廠房的要求執行。
4、倉庫建筑沒有安全疏散距離要求,辦公室、休息室內任意一點至安全出口的距離,可參照有關公共建筑的要求確定。
附屬在廠房倉庫的辦公室(休息室),屬于廠房的一部分,原則上,其消防設施,應按廠房的相關要求執行,比如,對于設置有自動噴火滅火系統的廠房,其附屬辦公室(休息室)也應設置自動噴水滅火系統。
參考觀點:對于辦公室(休息室)與廠房采取了防火墻或防火隔墻等防火分隔措施,且疏散獨立的情況,可以考慮只在廠房或倉庫部分設置自動滅火系統。(有爭議!)
一、倉庫建筑和一、二級耐火等級的單多層丁戊類廠房,沒有安全疏散距離要求,其辦公室是否也不需要限制安全疏散距離?
這些建筑場所的安全疏散距離,規范未作限定,但當設置辦公室等場所時,同樣必須考慮安全疏散距離要求,安全疏散距離可以參照公共建筑(辦公建筑)的要求確定。
員工宿舍嚴禁設置在廠房內(3.3.5),廠房中的休息室,不可用于值班員工的宿舍,僅供平時臨時休息使用,不能作為宿舍用途。
本文所述觀點,供參考,對于專項規范有要求者,應從其規定!
以上內容是北京智淼消防工程改造公司發布,剽竊一律刪除。http://www.gostory.cn/ 北京消防工程公司擁有專業的安裝團隊及一級消防施工資質;從事消防器材工程設計、安裝、改造、維修、檢測,歡迎來電咨詢,咨詢熱線:18910580194,北京消防改造安裝網址:http://www.gostory.cn/;